中野区江原町1丁目 中古戸建

7,590万円

東京都中野区江原町1丁目

都営大江戸線「新江古田」駅徒歩10分

西武池袋線「東長崎」駅徒歩14分

都営大江戸線「落合南長崎」駅徒歩16分

価格
7,590万円
間取り/建物面積
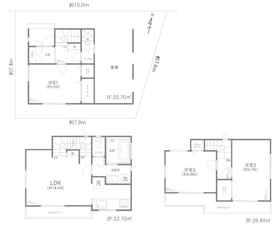
3LDK/79.89㎡
所在地
東京都中野区江原町1丁目
築年
2012年6月(築13年)
駐車
有(1台)
交通

都営大江戸線新江古田」駅 徒歩10分

西武池袋線東長崎」駅 徒歩14分

都営大江戸線落合南長崎」駅 徒歩16分

中野区江原町1丁目 中古戸建の基本情報

物件名
中野区江原町1丁目 中古戸建
価格
7,590万円
建物面積
79.89㎡
土地面積
20.16坪(66.67㎡)
築年月
2012年6月(築13年)
総戸数
1戸
所在地
東京都中野区江原町1丁目
交通

都営大江戸線新江古田」駅 徒歩10分

西武池袋線東長崎」駅 徒歩14分

都営大江戸線落合南長崎」駅 徒歩16分

中野区江原町1丁目 中古戸建の詳細情報

設備条件
  • 閑静な住宅地
設備(その他)
    -
駐車場/月額
有(1台)/-
土地権利
所有権
国土法届出
不要
用途地域
第一種低層住居専用
取引態様
仲介
引渡し
相談

中野区江原町1丁目 中古戸建で募集中の物件

  1. 24.16坪 (79.89㎡)

    7,590万円(314.16万円/坪)

周辺施設

  • 江原公園の画像

    公園

    江原公園

    258m(4分)

  • 江原保育園の画像

    保育園

    江原保育園

    262m(4分)

  • 中野区立江原小学校の画像

    小学校

    中野区立江原小学校

    313m(4分)

  • サミットストア 江原町店の画像

    スーパー

    サミットストア 江原町店

    400m(5分)

  • ローソン 新宿西落合三丁目店の画像

    コンビニエンスストア

    ローソン 新宿西落合三丁目店

    404m(6分)

  • 林医院の画像

    内科

    林医院

    439m(6分)

  • 豊島南長崎六郵便局の画像

    郵便局

    豊島南長崎六郵便局

    652m(9分)

  • 中野区立第七中学校の画像

    中学校

    中野区立第七中学校

    745m(10分)

  • 新江古田駅の画像

    新江古田駅

    800m(10分)

近隣の物件

  1. 中野区江古田1丁目

    4LDK (129.92㎡)

    1999万円

  2. 中野区上高田2丁目

    3LDK (111.57㎡)

    9,980万円

  3. 中野区鷺宮1丁目

    3LDK (92.32㎡)

    6,000万円

  4. 中野区鷺宮5丁目

    2SLDK (73.55㎡)

    6,699万円

中野区江原町1丁目 中古戸建

お気軽にお問い合わせください

無料お問い合わせ

東京リアルティ株式会社

03-5990-5201

9:30~19:00

(休:火曜日・水曜日)